点击后方链接免费下载本文word文件
电脑端手机端「链接」
1.防水工程施工
1.1.目的
明确防水工程节点标准做法。
1.2.防水标准做法
1.2.1.地下室防水
地下室底板疏水做法
1、100mm厚C25混凝土随捣随抹光,内配单层双向钢筋φ4@150(按柱距设置分隔缝,且不能超过4米,用切割机切深15mm,宽5mm的缝,建筑油膏填缝);
2、三彩布隔离;
3、最薄处60mm厚级配碎石(10-30mm)疏水层,每隔2米设置d20的排水管;
4、防水钢筋混凝土底板(结构找坡1%,随捣随收光,抗渗等级按设计要求);
5、60mm厚C15素混凝土垫层;
6、素土夯实(密实度≥93%)。
地下室底板疏水做法
1、100mm厚C25混凝土随捣随抹光,内配单层双向钢筋φ4@150(按柱距设置分隔缝,且不能超过4米,用切割机切深15mm,宽5mm的缝,建筑油膏填缝);
2、25mm厚疏水板,搭接不少于100mm,接缝处采用无纺布两边各100mm;
3、防水钢筋混凝土底板(结构找坡1%,随捣随收光,抗渗等级按设计要求);
4、60mm厚C15素混凝土垫层;
5、素土夯实(密实度≥93%)。
负二层地下室顶板做法
1、100mm厚C25混凝土随捣随抹光,内配单层双向钢筋网φ4@150mm,坡向排水明沟(明沟尺寸200mm宽100mm深),排水明沟坡向集水井;按柱距设伸缩缝,间距不超过4米,用切割机切深15mm、宽5mm缝,建筑油膏填缝。
2、钢筋混凝土砼(负二层结构顶板结构自找坡1%。
地下室顶板防水标准做法
1、回填土;
2、三彩布(120G/M2);
3、20-25mm高塑料疏水板;
4、40mm厚细石混凝土,内配单层双向钢筋φ4@150,用切割机切深15mm、宽5mm缝,间距不超过4米,建筑油膏填缝。
5、4mm厚SBS改性沥青防水卷材;
6、抗渗钢筋混凝土(结构与底板同向找坡1%,随捣随收光,抗渗等级按设计要求。
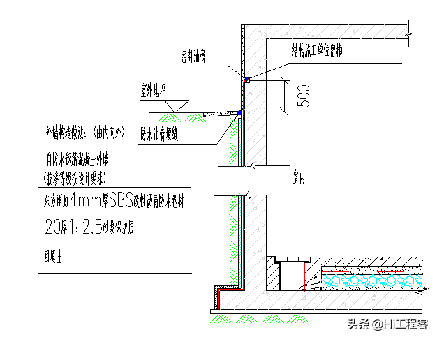
地下室外墙防水做法
1、回填土;
2、20mm厚1:2.5水泥砂浆保护层(超出地坪部分,抹灰需挂20*20*1镀锌钢丝网和扬砂);
3、4mm厚SBS改性沥青防水卷材,高度超过室外完成面不小于500mm;
4、自防水钢筋混凝土外墙(抗渗等级按设计要求)。
地下室外墙防水做法
1、回填土;
2、20mm厚水泥砂浆保护层;(及时回填)
3、4mm厚SBS改性沥青防水卷材,反到平面300mm,平面卷材下反300mm;
4、抗渗钢筋混凝土外墙。
住人地下室防水做法
1、抗渗钢筋混凝土底板;
2、20mm厚水泥砂浆保护层;
3、4mm厚SBS改性沥青防水卷材;(地下室水位高的情况下采用SAM自粘卷材)
4、60mm厚素混凝土垫层。
外墙止水螺杆做法
1、止水螺杆中间设置70mmx70mm的止水片;
2、两端设置宽30mm,厚10mm的垫片;
3、凿除垫片后采用1:2的水泥砂浆填实补平。
地下室外墙施工缝做法
地下室外墙穿墙套管做法
1、外墙预埋止水套管;
2、套管与管道间白水泥油麻丝填缝;
3、建筑油膏封堵;
4、300mm宽溶剂型橡胶沥青防水涂料,中间加200mm宽玻纤网格布;
5、4mm厚SBS改性沥青防卷材;
6、20mm厚1:2.5水泥砂浆保护层。
地下室外墙后浇带做法
1、20mm厚1:2.5水泥砂浆保护层;
2、外墙4mm厚SBS改性沥青卷材防水层;
3、1.5mm厚溶剂型橡胶沥青防水涂料,中间加玻纤网格布,两侧各延伸250mm宽;
4、抗渗钢筋混凝土,施工缝处预埋3mm厚止水钢板。
1.3.楼地面防水
毛坯房卫生间防水做法
1、20mm厚1:2.5水泥砂浆保护层;
2、1.5mm厚JS-Ⅱ型的防水涂料(不少于三遍),四周卷起至少比卫生间反坎高50mm;
3、管道周边300mm宽范围及阴角部位做0.75mm(不少于两遍)厚JS-Ⅱ型的防水涂料附加层;
4、钢筋混凝土楼板结构找坡2%,坡向侧排口(四周浇筑200mm高同墙厚导墙)。(注:小降板卫生间降板10CM,大降板卫生间降板35CM,卫生间回填材料采用碎石。)
装修房卫生间防水做法
1、5mm厚1:1水泥细砂浆粘贴地面砖(0.5%坡度);
2、20mm厚1:2.5水泥砂浆保护层(0.5%坡度);
3、1.5厚JS-Ⅱ型防水涂料(不少于三遍),四周卷起至少比反坎高50mm;浴盆及淋浴间立面1.0mm厚加高至建筑完成面2米处;
4、40mm厚细石混凝土,内配筋φ4@200单层双向,(0.5%坡向地漏),与墙四周用沥青油膏嵌缝;
5、三彩布隔离层;
6、30-50mm粒径石子疏水层(厚度按沉箱高度);
7、20mm厚1:2.5水泥砂浆保护层(保持2%坡向地漏);
8、1.5mm厚JS-Ⅱ型防水涂料(不少于三遍),四周卷起至少比卫生间反坎高50mm;
9、阴阳角及管根部位300mm宽0.75mm厚JS-Ⅱ型防水涂料附加层(不少于两遍);
10、钢筋混凝土楼板结构面自找坡2%,随捣随收光(四周浇注200mm高同墙厚导墙)。
烟道防水节点
1、反坎周边增加1.5mm厚JS-Ⅱ型防水涂料,上反100mm,周边延伸不少于250mm;
2、烟道底部设置宽60mm高100mm的混凝土反坎;
3、烟道放置在楼板上。
阳台穿楼板管道节点做法(未采用止水节)
1、管道周边250mm宽范围内采用1.5mm厚JS-Ⅱ型防水涂料附加层(不少于三遍),上反50mm;
2、管根部位密封膏圆弧处理;
3、洞口吊模分两次采用微膨胀细石混凝土,两次灌注后,要24小时闭水试验;
4、洞口的模板支撑采用底部顶撑方式,禁止穿铁丝;
5、阳台结构面找坡1%。
阳台穿楼板管道节点做法
1、管道周边250mm宽范围内采用1.5mm厚JS-Ⅱ型防水涂料附加层(不少于三遍),上反50mm;
2、采用止水节,管道在浇筑混凝土时一次固定;
3、阳台结构面找坡1%。
阳台地漏节点做法(未采用止水节)
1、地漏周边250mm宽范围内采用1.5mm厚JS-Ⅱ型防水涂料附加层(不少于三遍);
2、地漏周边预留10x10mm的凹槽,内嵌止水条;
3、洞口吊模分两次采用微膨胀细石混凝土,两次灌注后,要24小时闭水试验。
4、洞口的模板支撑采用底部顶撑方式,禁止穿铁丝。
阳台地漏节点做法(未采用止水节)
1、地漏周边250mm宽范围1.5mm厚JSⅡ型防水涂料(不少于三遍);
2、采用止水节点,地漏在浇筑混凝土时一起浇筑。
1.4.屋面防水做法
女儿墙泛水节点
1、40mm厚C20细石混凝土,内配筋φ4@150双向,平面四周(沿墙和水沟边)设伸缝宽10mm,平面内间距≤3米设缩缝,深15mm,宽5mm,缝内嵌防水油膏;
2、挤塑聚苯板保温层,厚度满足设计要求;
3、40mm厚C20细石混凝土,内配筋φ4@150双向钢筋,平面四周(沿墙和水沟边)设宽10mm伸缝,平面内间距≤3米设缩缝,深15mm,宽5mm,缝内嵌填防水油膏;
4、SBSIPYPE4+3改性沥青防水卷材(两道);
5、钢筋混凝土屋面结构板(结构面找坡1%,随捣随抹光)。
种植屋面做法
1、回填土;
2、土工布(120G/M2);
3、20-25mm高塑料疏水板;
4、40mm厚细石混凝土,内配单层双向钢筋φ4@150,用切割机切深15mm、宽5mm缝,间距不超过4米,建筑油膏填缝。
5、4+3mm厚SBS改性沥青防水卷材;
5、抗渗钢筋混凝土(结构与底板同向找坡1%,抗渗等级按设计要求。
斜屋面做法
1、安装陶瓦或水泥瓦;
2、40mm厚C20细石混凝土,内配φ4@150X150钢筋网片;设间距≤3米的分格缝缝宽5mm,油膏嵌缝;
3、挤塑聚苯乙烯板保温层,厚度满足设计要求
4、40mm厚C20细石混凝土,内配φ4@150X150钢筋网片;设间距≤3米的分格缝缝宽5mm,深15mm,油膏嵌缝;
5、4mm厚SBS改性沥青防水卷材;
6、钢筋混凝土屋面结构板原浆收光,板上预留φ8@500mm的钢筋头。
斜屋面钢筋头节点做法
1、4mm厚SBS改性沥青防水卷材,建筑油膏封口;
2、1.5mm厚溶剂型橡胶沥青防水涂料,中加网格布,上反100mm,平面延伸150mm;
3、钢筋根部做成砂浆圆角;
4、斜屋面原浆收光,板上预留φ8@500mm的钢筋头。
出屋面烟道做法
1、屋面做法;
2、屋面卷材防水层,上反≥400mm,烟道上做凹槽并建筑油膏封口;
3、500mm宽1.5mm厚溶剂型橡胶沥青涂料,中间加300mm宽玻纤网格布,平面延伸250mm;
4、阴角部位倒圆角处理;
5、烟道浇筑混凝土到顶。
屋面雨落口节点
1、保温层,侧边设置排水盲沟,管径20mm,伸入保温层500mm;
2、40mm厚C20细石混凝土,内配筋φ4@150双向钢筋,平面四周(沿墙和水沟边)设宽10mm伸缝,平面内间距≤3米设缩缝,深15mm,宽5mm,缝内嵌填防水油膏;
3、收口部位建筑油膏封口;
4、屋面SBS改性沥青卷材防水层;
5、500mm宽1.5mm厚溶剂型橡胶沥青涂料,中间加300mm宽玻纤网格布;
7、抗渗混凝土屋面板结构面自找坡1%,随捣随收光。
坡屋面檐口节点
1、直径20mm的PVC泄水管;
2、卷材保护层;
3、4mm厚SBS改性沥青防水卷材;
4、1.5mm厚溶剂型橡胶沥青涂料,中间加玻纤网格布,延伸到檐口外250mm宽;
5、阴角部位倒圆角;
6、屋面结构板,随捣随收光。
屋面变形缝节点
1、变形缝内聚苯乙烯泡沫板封堵;
2、卷材收口部位密封膏封堵;
3、屋面卷材防水层;
4、1.5mm厚溶剂型橡胶沥青涂料,中加玻纤网格布,平面延伸250mm宽;
5、阴角部位倒圆角处理;
6、屋面混凝土板,随捣随收光,结构找坡1%。
屋面变形缝节点
1、混凝土压顶;
2、0.8mm厚不锈钢板压顶;3、变形缝内聚苯乙烯泡沫板封堵;
4、卷材收口部位密封膏封堵;
5、屋面SBS改性沥青卷材防水层;
6、1.5mm厚溶剂型橡胶沥青涂料,中加玻纤网格布,平面延伸250mm宽;
7、阴角部位倒圆角处理;
8、屋面混凝土板,随捣随收光,结构找坡1%。
出屋面管道节点
1、砂浆圆台保护层;
2、建筑油膏收口;
3、屋面卷材防水层;
4、1.5mm厚溶剂型橡胶沥青涂料,中加玻纤网格布,平面延伸250mm宽;
5、套管阴角部位倒圆角处理;
6、预埋止水套管,露出建筑完成面100mm。
屋面保温层设置排气管做法
1.保温层部分设置d50的PVC排气管,每隔4米设置一道;
2.排气管伸出结构面600mm高,固定在女儿墙侧壁;排气管顶上加盖防雨帽。
1.5.外墙防水节点
外墙螺杆洞做法
1、螺杆洞内发泡胶填充密实;
2、喇叭口部位1:2干硬性水泥砂浆封堵补平;
3、外部1.5mm厚JSI型防水涂料(100mmx100mm)。
铝合金窗边防水
1、窗框底部预留宽5mm,深8mm的凹槽,防水油膏填缝;
2、水泥砂浆抹灰层;
3、1.5mm厚JSⅠ型防水涂料,压框10mm,压外墙面50mm;
4、干硬性水泥砂浆塞缝,窗框外侧底部抹平并做成弧形圆角;
5、窗台设2根φ6的通长钢筋,并预留100mm高度后浇C20混凝土现浇窗台卧梁,伸入墙内400mm,卧梁做成30mm深企口,并放10%的坡度,高差不小于20mm。
铝合金侧窗防水做法
1、水泥砂浆抹灰层;
2、1.5mm厚JSⅠ型防水涂料,压框10mm,压外墙面50mm;
3、干硬性水泥砂浆塞缝,窗框外侧抹平并做成弧形圆角;
4、窗洞口部位做成100mm宽混凝土并预留企口。
雨棚防水
1、最薄处15mm厚1:3水泥砂浆找坡层,坡度2%。
2、根部批R=50mm的圆角,1.5mm厚JSⅡ型防水涂膜,平面伸出250mm,上反高度100mm
3、钢筋砼结构板(根部素砼做反坎200mm高,与主体一次浇注完成)。
1.6.泳池防水
泳池、消防水池防水
1、装饰面层铺贴;
2、20mm厚1:2.5水泥砂浆保护层;
3、2mm厚JS-Ⅱ型聚合物水泥防水涂料,阴角部位加无纺布加强处理;
4、阴、阳角收成圆角,R≥100mm;
5、抗渗混凝土结构层;
6、100mm厚C15混凝土垫层;
8、回填土,密实度≥93%。
