不得不说,现在的售楼中心是一个比一个有设计感,进去后要是不看沙盘区都完全看不出来是售楼处好吗!
▲ 佳兆业晓岸云起售楼处(完全看不出来好吗)
售楼处的设计,会直接影响到客户第一视觉效果。而设计师在设计阶段也需要经过仔细推敲,在汇报阶段能完美展现方案表达的内涵和效果,今天我们就一起来看看售楼部在设计过程中需要注意的地方。
文末附 精选售楼中心方案PPT合集
01
主题风格
在设计之初,对项目进行前期的分析和了解是非常重要的一步。在正式开始设计之前要根据项目定位和需要,确定合适的主题风格,毕竟现在的售楼部已经不走金碧辉煌、只注重营销的路线了。
现在售楼处的风格也是多种多样,有的现代感满满,有的走中式风,有的以儿童为主题,有的为了可持续发展,让售楼处在后期能继续使用,会与结合其他功能,比如中国中铁售楼中心就是和社区图书馆结合,在后期可作为公共图书馆使用。
▲ 中式风格售楼处
▲山东潍坊“儿童主题”博观熙岸售楼中心
▲ 中国中铁售楼中心和社区图书馆
02
方案设计
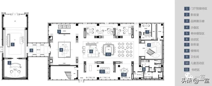
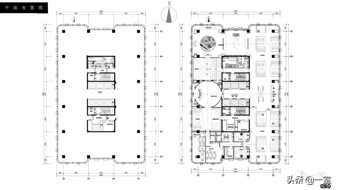
对于售楼处的设计来说,首先需要满足其所需的功能,比如接待区、展示区、洽谈区、办公区等基本功能区域,再根据实际情况,可增加儿童活动区、休闲区等辅助功能区。
既然是空间设计,除了功能以外,还需要注重氛围的营造。根据不同的主题风格,选择合适的色彩、材质进行搭配设计,营造出不一样的氛围。
▲ 儿童主题的售楼处设计颜色出彩
▲ 木质温润
▲ 石材现代
灯光对整体效果以及氛围的营造都能发挥很大的作用,选择合适的灯具,可选择多种灯光相结合的方式来打造。
03
成果展示
方案做得好并不代表着结束和成功,如何在方案汇报上将设计方案最好的呈现出来也是非常重要的一个环节。PPT是最常见的方案汇报形式,不要让方案毁在了PPT展示的上,能最大程度的展现清楚方案及其优势特色是非常重要的。
在PPT中,除了设计图纸和效果图,还可以加入概念图分析图,能让人更清晰地知道整个方案的来龙去脉,了解方案的形成过程以及方案的设计理念。
在进行效果图的展示时,可以采用和平面图结合的方式,能更直观地将效果图与相应的空间对应起来,也更易于理解。
所以不止得方案做得好,PPT汇报也很重要。这里小编为你精选了售楼中心方案PPT合集,一起来学习售楼处方案的设计以及汇报PPT的展现,让你的方案更具竞争力。
精选售楼中心方案PPT合集
共24套
部分内容展示
-南京中建国熙台售楼处方案汇报-
-合肥锦绣龙川销售中心设计概念方案-
-长沙吾悦售楼处深化设计PPT-
-重庆龙湖概念设计-
-杭州萧山璟隽售楼处项目软装设计方案-
-北京万科滨江售楼处概念方案-
▲以上仅为部分展示
【免费领取】关注+转发 然后私信“素材”
版权声明:我们尊重原创。文字美图素材,版权属于原作者。部分文章推送时因种种原因未能与原作者联系上,若涉及版权问题,敬请原作者联系我们,立即处理。
